Hurricane EV + Pivot

Sky-Frame Hurricane (Ouragan) établit de nouvelles normes pour les fenêtres coulissantes sans cadre dans des conditions météorologiques extrêmes.

Certifié selon les normes strictes High Velocity Hurricane Zone (HVHZ) du comté de Miami-Dade et approuvé par le Florida Building Code (la référence de l'industrie), il combine une transparence sans compromis avec une protection maximale contre les ouragans.

Spécifiquement conçu pour les régions exposées au vent et aux tempêtes, Sky-Frame Hurricane a dépassé les tests d'impact d'ouragan les plus rigoureux. Avec des tests de charge au vent de +/- 3,6 kN/m² et des valeurs de test de pluie battante de 1.200 Pa, parmi les plus élevées au monde, le système offre une résistance à l'eau et une intégrité structurelle exceptionnelles.

Les panneaux de 2,3 m × 3,5 m de Sky-Frame comptent parmi les plus grandes portes coulissantes sans cadre certifiées ouragan sur le marché mondial.

Un nombre infini de panneaux peut être combiné avec une surface de panneau allant jusqu'à 8,1 m² pour créer des façades continues de mur à mur avec des vues ininterrompues.

Bien que principalement conçu pour les régions sujettes aux ouragans aux États-Unis (de la Floride aux Carolines et à la côte du Golfe) et dans les Caraïbes, Sky-Frame Hurricane convient également à tout endroit exposé au vent confronté à des charges de vent extrêmes, y compris les immeubles de grande hauteur, les propriétés de montagne et les zones côtières du monde entier.

 

Nouveau : Ouverture d’angle (EV) Hurricane 

La percée architecturale réside dans la capacité unique de Sky-Frame Hurricane à permettre des ouvertures d'angle dans les zones d'ouragan et les environnements exposés au vent. Cette solution d'angle innovante permet des ouvertures des deux côtés, ouvrant des possibilités de conception entièrement nouvelles pour l'architecture moderne. Un verrou à crémone dissimulé fournit une résistance au vent supplémentaire en cas de besoin.

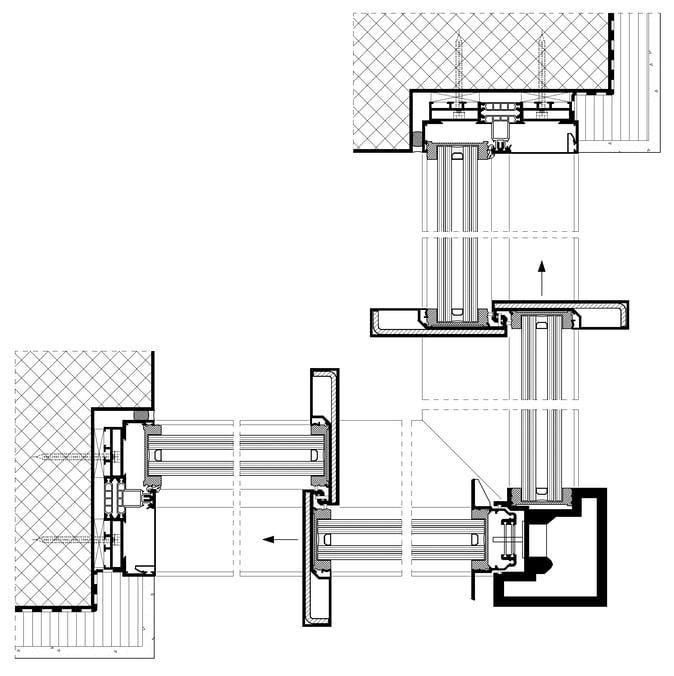
 Sky-Frame 3 HRC - EV (vereinfachte Ecke)_CUT 

Les portes coulissantes peuvent être motorisées ou actionnées manuellement avec une large gamme d'options d'ouverture.

Une ligne de vue mince de 29 mm offre une expérience spatiale sans limite pour une architecture exceptionnelle. Les systèmes multi-rails permettent l'installation d'un nombre illimité de portes coulissantes côte à côte, créant des transitions intérieur-extérieur fluides.

Les éléments coulissants sont désormais également autorisés sur la voie intérieure. Cela permet désormais de combiner librement les éléments.

Flexibilité maximale avec les options de vitrage : choisissez le double vitrage isolant pour une efficacité énergétique supérieure, le verre de sécurité feuilleté haute performance (VSG) pour une sécurité et une résistance aux chocs renforcées, ou le vitrage monolithique nouvellement disponible.

 

Nouveau : Hurricane Pivot

Le portfolio est complété par la Sky-Frame Pivot certifiée ouragan.

Cette porte pivotante surdimensionnée avec un cadre en aluminium minimal répond aux normes les plus élevées en matière de charge au vent, de résistance à la pénétration de l'eau et de sécurité aux chocs.

Testée pour des dimensions de porte allant jusqu'à 1,7 m × 3,2 m à +/- 3,1 kN/m², elle crée des entrées spectaculaires pour les résidences de luxe et les bâtiments commerciaux dans les régions sujettes aux ouragans et exposées au vent.


 

Détails:

     
Caractéristiques    Sky-Frame 3 Classic
Hurricane
Sky-Frame 3 Pivot
Hurricane
Pression de conception   

3.6 kN/m2

3.1 kN/m2

Panneau coulissant ou fixe
(largeur max × hauteur max) 
  2311 mm × 3505 mm 1700 mm × 3200 mm
Surface max par panneau
(Toutes dimensions possibles sur demande) 
  8.1 m2
5.44 m2

Verre isolant (2-IV) (Classic)
Verre isolant (2-IV) (Pivot)
Verre simple (Classic)  

 

40.5 mm: VSG-TVG 6/6.6 SGP / 12 / VSG-TVG 6/6.6 SGP
48.6 mm: VSG-TVG 8/8.6 SGP / 12 / VSG-TVG 8/8.6 SGP 
33.8 mm: VSG-TVG 6/12/12.4 SGP.6 SGP

Etanchéité pluie battante (Classic)
Etanchéité pluie batt. (
Ouverture d’angle)
Etanchéité pluie battante (Pivot)
  

 

jusqu’à 1200 Pa
jusqu’à 540 Pa
jusqu’à 470 Pa

Classification 
(TAS 201/202/203)
  HVHZ, zone de vent 4
Impact aux projectiles de grande et de petite taille  
NFRC   disponible 

 

Configuration :

Nombre de rails   2–4
Nombre de panneaux   aucune limite
Labyrinthe renfort acier (XL St)   disponible
Ouverture centrale décalée   disponible
Ouverture centrale sur même rail   disponible
Ouverture latérale   disponible
Ouverture d’angle   disponible
Angle vitré   non disponible
Inline   non disponible

 

Nous restons à votre disposition pour toute question éventuelle.